Architectural Services for Custom Homes

and Senior Living Facilities (ALFs, SNFs)

ARCHITECT
Warren E. Barry
DBA: W.E.B. Designs
(352) 472-2600
Sample permit drawings
Residential Permit Drawings, custom home plans, building sections

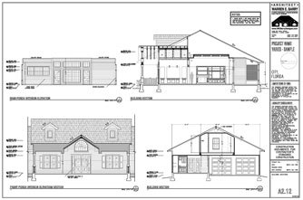
Building Sections

Building Sections are not needed for every project but are necessary for describing more complex designs.  Sections make it easier to understand and study elaborate spatial and structural conditions.  Sections also make it easier for a client to see the proportions of interior spaces as well as visualize elaborate ceiling conditions and floor terracing when incorporated into a design.

Copyright ©: Website Design and Website Content Designed by Florida Architect Warren E. Barry, #AR93495