Architectural Services for Custom Homes

and Senior Living Facilities (ALFs, SNFs)

ARCHITECT
Warren E. Barry
DBA: W.E.B. Designs
(352) 472-2600
Sample permit drawings
Permit Drawings, custom home plans, exterior elevations, highly detailed

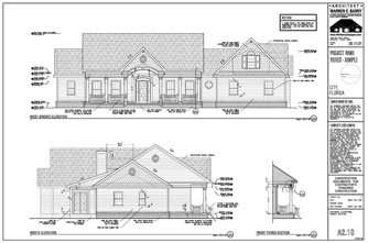
Exterior Elevations

Exterior Elevations show what the completed home will look like by depicting a two dimensional view of the exterior design.  Roof design, finish materials, exterior doors and windows, and trim work are all indicated on the elevations.  Other important aspects such as critical dimensions for code compliance, truss bearing heights, window head heights, and finished floor elevations are also given.

 

Copyright ©: Website Design and Website Content Designed by Florida Architect Warren E. Barry, #AR93495